Ce projet peut apparaître comme relativement mineur dans l’œuvre de Toyo Ito, ici associé à Hosoya Schaefer. Il ne manque cependant pas de caractère, en particulier dans sa façade transparente.
Cet immeuble a été imaginé dans le cadre du Blue Moon Project lancé à Groningen sur la base d’un concept de Toyo Ito. En complément de diverses installations et autres évènements dans l’Europaparc, une série de bâtiments a été programmée avec la volonté d’harmoniser bâtis anciens et nouveaux. Celui-ci s’inscrit dans un alignement de façades en briques. Il réinterprète le calepinage typique d’un mur aux briques décalées à chaque rang d’une demi-longueur, en basculant le motif à la verticale et en dématérialisant le cœur en terre cuite pour ne conserver en quelque sorte que le joint concrétisé en aluminium.
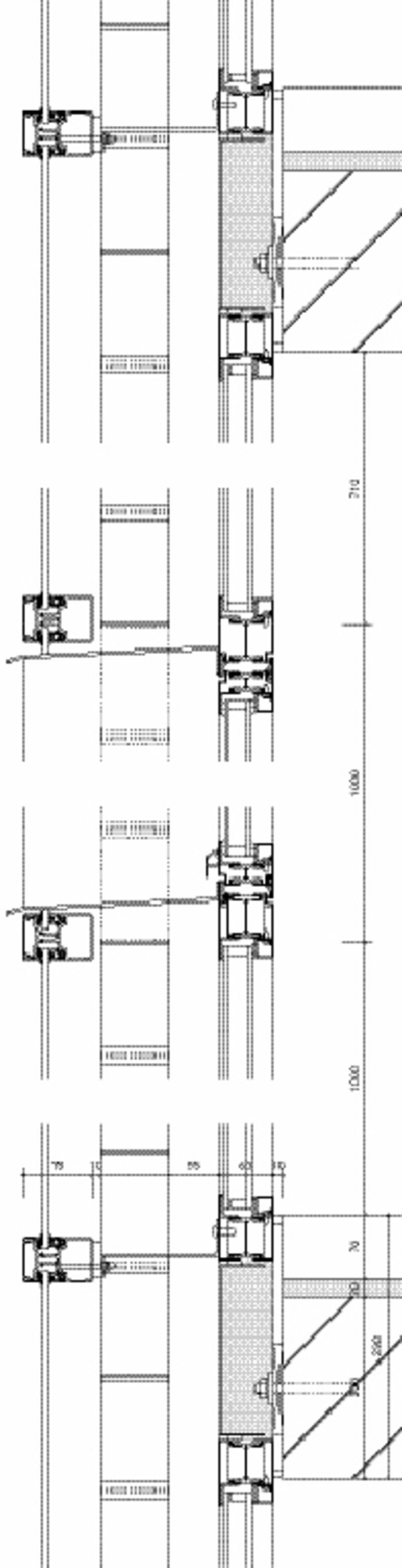
Ce troublant mur-rideau présente un simple vitrage en face extérieure et un feuilleté isolant à l’arrière de la structure en fausses briques d’aluminium. Cet écran vitré se déploie sur l’intégralité de la surface, en avant d’une traditionnelle façade de « vraies » briques.
La structure en aluminium a été fabriquée et assemblée au Japon sous la forme de trois grands panneaux qui furent transportés en bateau jusqu’au port de Rotterdam. Les profilés extrudés de faible section composent une résille rigide. Les joints sont conçus pour absorber les efforts thermiques de l’aluminium en contraction et en dilatation. Des profils horizontaux à fonction poutre au vent renforcent le système. Cette avant-façade autoporteuse est fixée sur la maçonnerie par des écharpes métalliques, elles-mêmes ancrées dans les nez de dalles en béton armé.
Le résultat de l’intervention est d’une légèreté et d’une transparence étonnantes, bien que cette façade intègre seulement deux « fenêtres » dans la travée de droite et une unique porte métallique opaque.





