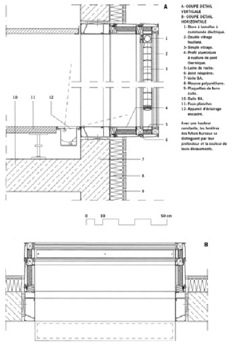
En bordure du boulevard périphérique parisien, la reconversion des Magasins généraux en surface à vocation tertiaire est sur le point de s’achever. Porte d’Aubervilliers, respectant l’identité des bâtiments existants, l’immeuble qui commande l’entrée de la zone reçoit sa vêture de briques (un parement qui dissimule un isolant thermique extérieur à base de mousse polyuréthane). Sur un socle de deux niveaux l’immeuble de 10 000 m2 superpose un prisme de six plateaux de bureaux en blanc. Devant un programme qui ne différencie pas les locaux, et souhaitant que chacun des futurs bureaux puisse trouver une identité, Olivier Brénac et Xavier Gonzalez ont choisi de les distinguer par l’aspect de leurs ouvertures. Etudiées avec l’aide de Robert Jan Van Santen, les menuiseries d’aluminium ont toutes la même hauteur, qui va du sol au faux plafond, alors que la largeur, et surtout la profondeur, sont variables par l’épaisseur des huisseries. On en distingue quatre types, dont les profilés en aluminium, assemblés en continuité, ont des sections plus ou moins allongées. Ainsi les fenêtres les plus fines sont au nu extérieur de la façade alors que les plus profondes présentent une saillie de plus de 35 cm. Les vitrages feuilletés sont placés tout à l’extérieur, d’abord un double vitrage puis un simple vitrage coté intérieur. Entre les deux : une lame d’air ventilée dont l’épaisseur de 7 cm renforce l’inertie thermique de l’ensemble, et un store vénitien commandé électriquement et asservi à la GTC de l’immeuble. Le projet fait l’objet d’une démarche HQE. Ces boîtes lumineuses se caractérisent par la polychromie de leurs ébrasements, dont les différentes profondeurs s’animent suivant une palette de douze couleurs, réparties selon un schéma aléatoire tout autour des façades. Au pied des fenêtres, encastré dans le faux plancher, le plasticien lumière François Migeon a placé un éclairage qui met en valeur cette polychromie dès la nuit tombée.


