Ces bureaux constituent le centre névralgique d’un complexe industrialo-tertiaire de 42 000 m2 (voir amc n° 151, avril 2005). Cet ensemble présente la particularité d’être entièrement de plain-pied, y compris donc les bureaux répartis dans une sorte de peigne à quatre dents côté est du site. Chaque « dent », large de 13,60 m, est séparée de sa parallèle par un redent engazonné de 12,60 m. L’espace peut être ouvert ou compartimenté au moyen de cloisons démontables (Clestra) n’intégrant aucun réseau contraignant. Ces bureaux sont éclairés naturellement par les baies vitrées périphériques ou par des ouvertures sur des patios intérieurs.
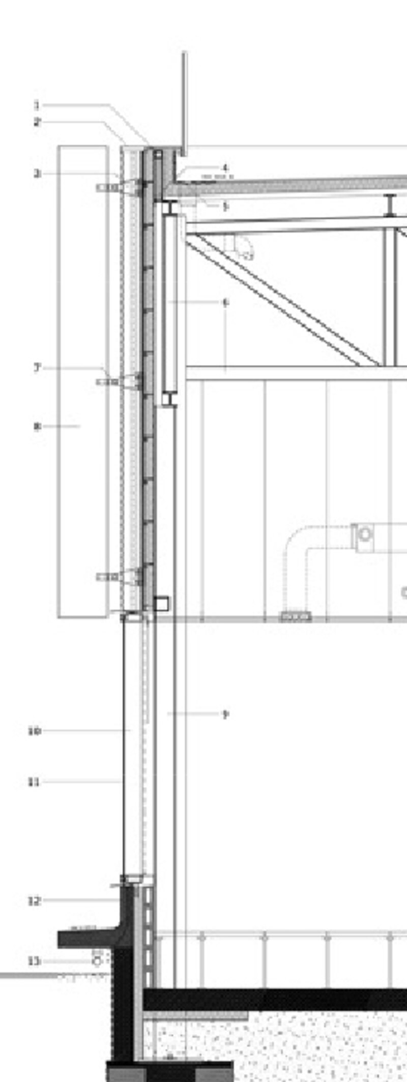
L’architecte a défini une expression unitaire des façades sur l’ensemble du site, avec une valorisation des verticales sur une trame au standard 1,35 m. Les bureaux se distinguent par une hauteur inférieure à celle des ateliers, soit 3,80 m au sommet d’acrotère. En coupe verticale, se superposent un socle allège en panneaux préfabriqués de béton gris, une bande centrale de vitrages fixes ponctués d’ouvrants opaques sur 2,20 m de hauteur et un bandeau supérieur de verre émaillé. Le tout est couronné par un garde-corps dont le grillage en acier galva est tendu entre des poteaux implantés selon la trame de 1,35 m. Les terrasses, accessibles pour la maintenance, sont revêtues d’une étanchéité bi couche de couleur verte composant une cinquième façade qui, vue du ciel, se confond avec le gazon des espaces extérieurs.
Les vitrages isolants collés (VEC) sont discrètement réfléchissants, avec une couche Anthélio argent en face 2 leur conférant un facteur solaire de 0,4. Conformes à la RT 2000, les menuiseries alu à rupture de pont thermique autorisent un bon coefficient de déperditions U de 1,8 W/m2.K. Un store intérieur métallisé (screen) permet de moduler la pénétration du rayonnement solaire. Les panneaux ouvrants à 90° vers l’extérieur sont en tôle d’aluminium. Ils assurent une double fonction de ventilation et de décoration par leur finition interne colorée en orange ou en bleu.
Les montants du mur-rideau développé par Ouest Alu sont de type à capot serreur aux fixations apparentes, alors que les séparations horizontales sont à joint creux.
Détails singuliers, les angles sortants sont traités en vitrage bombé et les rentrants, également cintrés, sont en tôle d’aluminium identique aux panneaux ouvrants. Ces façades lisses et brillantes composent un écrin discret et précieux qui réfléchit la verdure environnante.


