Diaporama

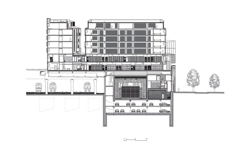
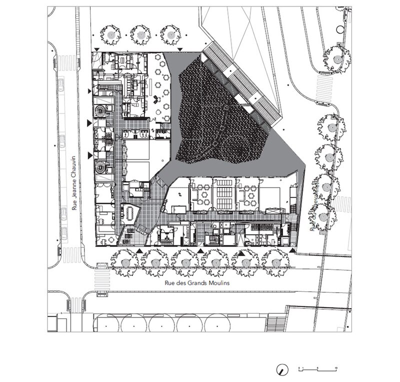
Immeuble mixte (école, logements, théâtre) à Paris (13e), par BP Architectures

Les plus lus : Réalisations
  1. Gros œuvre : une école de design en 1 001 courbes
  2. Travaux souterrains : outils sur mesure, ouvrage haute couture
  3. Bas-Rhin : l’Espace Charlemagne donne un signal sportif à Sélestat
  4. Villeurbanne : Aux Gratte-ciel, un IUT tout de bleu vêtu
  5. Equipement culturel : la Maison ronde se rêve en « Abbey Road »
  6. Territoire de Belfort : l’Ehpad des Rubans tourne le dos au Covid
Les services Le Moniteur
La solution en ligne pour bien construire !
L'expertise juridique des Éditions du Moniteur
Trouvez des fournisseurs du BTP !
Détectez vos opportunités d’affaires
69 - Caluire-et-Cuire
Date de réponse 21/10/2025