0 of 2
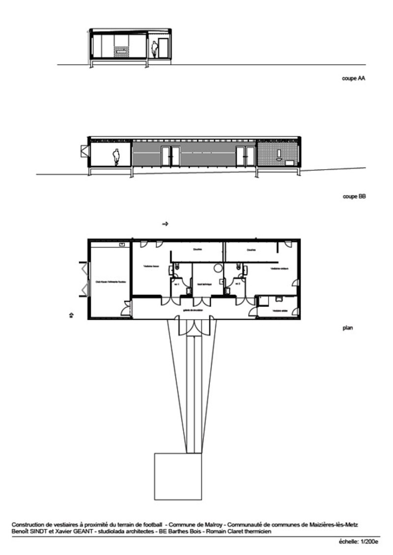
Vestiaires de football à Malroy (Moselle), par les architectes Benoît Sindt et Xavier Géant
Les plus lus : Réalisations
- Gros œuvre : une école de design en 1 001 courbes
- Travaux souterrains : outils sur mesure, ouvrage haute couture
- Bas-Rhin : l’Espace Charlemagne donne un signal sportif à Sélestat
- Villeurbanne : Aux Gratte-ciel, un IUT tout de bleu vêtu
- Equipement culturel : la Maison ronde se rêve en « Abbey Road »
- Territoire de Belfort : l’Ehpad des Rubans tourne le dos au Covid
Construction et talents
TEMOIGNAGE : Devenir Directrice d’Agence chez Artelia ? C’est possible !Le témoignage
Découvrez le témoignage de Sandrine Porterie qui nous partage son parcours au sein du Groupe et nous plonge au cœur de l’agence d’Aix-en-Provence qu’elle dirige aujourd’hui.
Les Editions Le Moniteur
Les services Le Moniteur
La solution en ligne pour bien construire !
KHEOX
Je m’abonne en ligne
L'expertise juridique des Éditions du Moniteur
Moniteur juris
Profitez des meilleurs experts en 1 clic !
Trouvez des fournisseurs du BTP !
Détectez vos opportunités d’affaires
69 - Caluire-et-Cuire
Date de réponse 21/10/2025