Maisons passives à Orléans (Loiret), par GA Architecture
Stéphane Miget
0 of 5
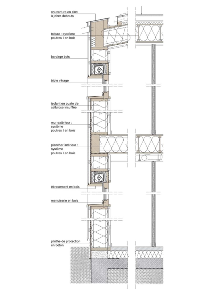
Finition La finition extérieure sera réalisée à l'aide d'un enduit sur isolation de couleur orange au niveau des redans des terrasses au R+1 des T4 et sur la façade pignon à l'est, d'un bardage en zinc de couleur brune identique à celui des toitures et d'un bardage bois clair en mélèze sur les autres façades extérieures.
Etanchéité Le contreventement du mur est assuré avec un panneau d'au minimum 15 mm d'épaisseur. L'étanchéité à l'air du mur est gérée à ce niveau soit par collage des joints, soit par rajout d'un film pare-vapeur. Les murs banchés seront dotés de chaque côté d'une isolation thermo-acoustique.
Construction La construction bénéficie du même mode constructif pour les murs, les planchers intermédiaires et la toiture. Cette dernière est isolée avec 300 mm d'ouate de cellulose, doublée d'un isolant en fibre de bois de 40 mm et une couverture en zinc.
Isolation Avec une isolation ouate de cellulose projetée, complétée par les habillages extérieurs et intérieurs, les murs extérieurs attendront la performance de U=0.13 W/(m²K).
Découvrez le témoignage de Sandrine Porterie qui nous partage son parcours au sein du Groupe et nous plonge au cœur de l’agence d’Aix-en-Provence qu’elle dirige aujourd’hui.