C'est sur les communes de Bure (55) et Saudron (52), à quelques kilomètres du site expérimental d’enfouissement des déchets nucléaires ultimes de l’Andra (Agence nationale pour la gestion des déchets radioactifs), qu’EDF a choisi d’implanter son futur Centre des archives industrielles (papiers et microfilms).
Un bâtiment d’archivage de 19,20 m de hauteur totale qui abritera vingt cellules de stockage, d’une superficie de 220 m2 chacune, l’ensemble offrant une capacité d’archivage équivalent à 70 km de rayonnages.
Le projet initial d’EDF prévoyait de construire un bâtiment à un seul étage qui s’étalerait donc au maximum sur la parcelle de terrain (3,3 ha). « Un choix architectural dont nous n’étions pas du tout convaincus, précise-t-on au cabinet d’architecture LAN. Eu égard aux coûts de réalisation de l’enveloppe et aux déperditions énergétiques qu’allait générer sa superficie. »
En proposant une structure cubique à 5 étages qui divise par deux la facture énergétique – dispersion calorique de 619 W/K contre 1 317 W/K, sans perte de capacité d’archivage, avec un Shon passant de 10 971 m2 à 6 800 m2 – LAN a convaincu le maître d’ouvrage. Atout logistique : « Cette conception, à circulations verticales, réduit les déplacements des employés, leur parcours annuel passant de 12 km à 1,5 km ! »
100 000 pastilles Inox implantées manuellement
Cette conception compacte offrait également, outre les intérêts énergétiques susmentionnés, l’avantage de minimiser l’emprise sur le terrain et donc de permettre l’installation d’un système de traitement des eaux par lagunage (voir encadré).
Afin de réduire encore l’impact paysager et rendre plus léger ce bâtiment massif, la partie bureaux a, quant à elle, été implantée sous une dalle végétalisée se fondant avec le niveau du terrain, le choix d’une façade couleur terre locale permettant, par ailleurs, de ne pas rompre avec la continuité du paysage.
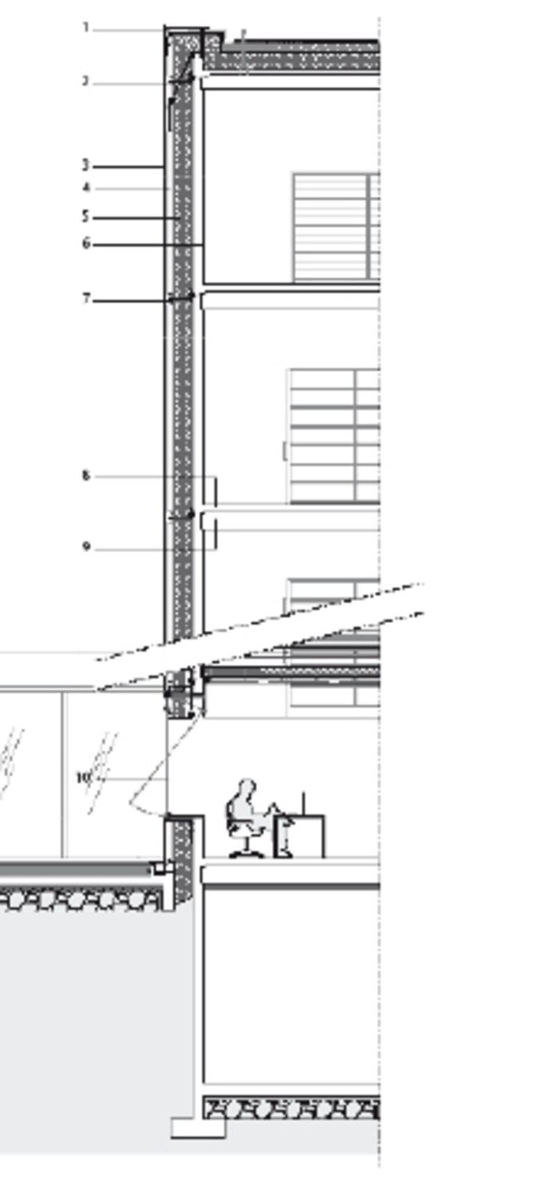
Mais le geste architectural le plus remarquable réside dans l’intégration, en façade, de 100 000 pastilles en Inox poli, dont le calepinage représente la frondaison des arbres d’un bosquet. La réflexion du paysage sur la peau du bâtiment créant, ainsi, un effet mimétique de transparence. « Une de nos principales difficultés a été, précisément, dans la mise en œuvre rigoureuse de ces pastilles », commente Jean-Yves Jousselin, P.-D.G. de l’entreprise de préfabrication, l’enveloppe du bâtiment étant constituée de 65 panneaux préfabriqués de 15,80 x 2,35 m venant habiller la structure porteuse réalisée, de manière traditionnelle, en béton banché.
Pour ce faire, « Nous avons installé un rétroprojecteur laser dans la charpente de l’atelier , explique Jean-Yves Jousselin. L’appareil permettant de reproduire dans le fond de moule le calepinage précis que le cabinet d’architecture nous avait transmis par fichiers informatiques ». Le faisceau laser dessinait ainsi, en fond de banche, un triangle isocèle dans lequel les opérateurs venaient positionner, manuellement, entre 1 500 et 1 600 pastilles Inox de 7 cm de diamètre pour chaque panneau, celles-ci étant munies de pattes de scellement en queue-d’aronde.
Des panneaux de faible épaisseur
Autre contrainte, le poids. Les éléments auto-portants étant accrochés en partie haute à l’ossature porteuse, par des suspentes de type Halfen, « leur poids ne devait pas excéder 11,2 t, afin de rester dans le cadre de l’Avis technique propre à ce système constructif », poursuit Jean-Yves Jousselin.
D’où la nécessité de réaliser des panneaux de grande minceur, la peau architectonique de 8 cm d’épaisseur étant ainsi renforcée, en partie arrière, par des nervures béton de 9 cm de hauteur (trois raidisseurs verticaux et dix horizontaux). Le coulage de ces éléments s’effectuant frais sur frais.
Précision : le béton de la peau devait également assurer une fonction autoprotectrice, eu égard aux difficultés d’entretien qu’auraient impliqué ces panneaux monolithiques de 15,80 m de hauteur, exempts de toute ouverture.
D’où le choix du ciment TX Arca de Ciments Calcia (voir encadré), le béton autonettoyant ainsi formulé nécessitant l’installation d’un silo spécifique couplé à des dispositifs de pesée très précis. Afin d’éviter tout risque de glissement, des pastilles Inox (épaisseur 20/10e de mm) lors du coulage de la peau, étaient fixées dans le fond de moule par l’intermédiaire d’un adhésif spécialement formulé pour l’opération. « Cette colle devait garantir le maintien exact du positionnement des pastilles, afin de respecter le calepinage de l’architecte, précise Jean-Yves Jousselin. Mais également, perdre son effet adhérent au bout d’une journée pour ne pas provoquer un effet de succion qui aurait, bien entendu, généré des difficultés de décoffrage et risqué de détériorer les panneaux. »
Pour ce faire, une peinture en polyuréthanne avait également été appliquée sur le fond de banche en bois.
Outils de manutention spécifiques
Les pastilles étaient, par ailleurs, revêtues d’un film plastique protecteur, conçu pour les protéger de tout risque de rayures, les panneaux ayant en effet subi, après décoffrage, un hydrogommage par sablage fin. « Ce traitement était destiné à accentuer l’intégration paysagère en faisant ressortir les grains de sable du béton et restituer, ainsi, les caractères spécifiques de la terre locale », précise-t-on chez LAN. Au niveau méthodologique, « Nous avons dû employer des tables hydrauliques relevantes pilotées et contrôlées informatiquement, ajoute Jean-Yves Jousselin, ceci afin de ne pas risquer de vriller les panneaux lors du décoffrage. »
Ces éléments hors gabarit, exceptionnels de par leur finesse et leur taille, ont par ailleurs nécessité la conception d’un appareil de retournement spécifique, « appareil que nous avons testé en atelier en sollicitant un des éléments dans tous les sens ».
Leur transport sur le chantier s’est déroulé sur des remorques extensibles, par convois exceptionnels grande longueur, la mise en place s’effectuant à la grue automotrice.









